сдам универсальное помещение, Ульяновская, 247600 ₽ в месяц
10 мар 2025
Дата публикации объявления
Обн. вчера
Дата обновления объявления
2
Количество просмотров (+ просмотры за сегодня)
380 ₽/м² в месяц
Параметры
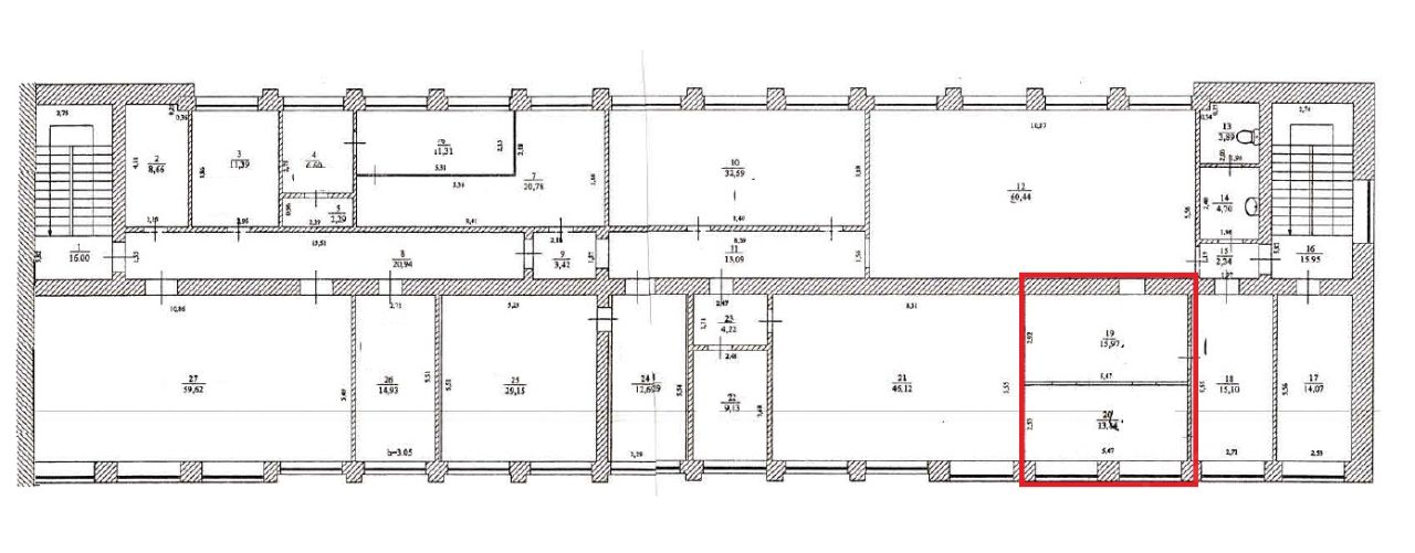
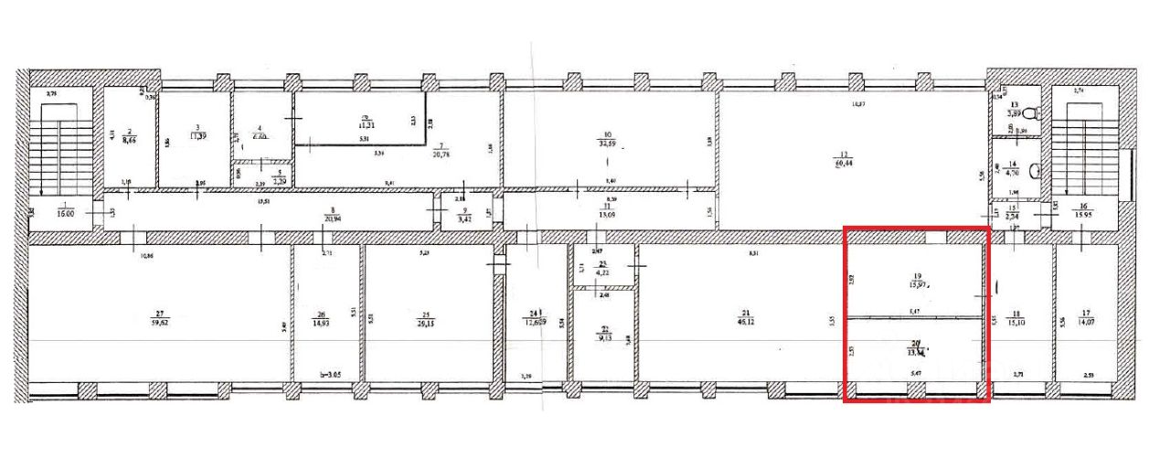
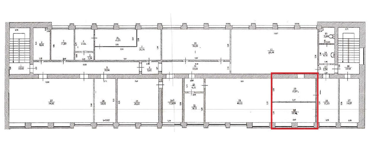
Общая площадь20 м2
Этаж3
Назначение помещения
фитнес-центр, спортивный зал, для работы с клиентами
В аренду предлагаем помещения площадью 89,37 кв. м на 3 этаже.
Кабинеты от 12 до 30 кв. м. Есть отдельный кабинет 30 кв. м на 2 этаже. Есть производственные и складские площади 200 кв. м на 3 этаже.
Цены разные, подберем подходящий вариант. Вход с торцевого крыльца по отдельной лестнице.
Центр города, первая линия. Отлично под офисы, оказание услуг, обслуживание населения, небольшое производство, спортзал, спортивные секции для взрослых и многое другое.
Все коммуникации центральные. Выделенная мощность 37 кВт.
В здании Почта России, мебельный салон, автошкола и другие арендаторы. Высокая проходимость. Есть парковка.
В аренду предлагаем помещения площадью 89,37 кв. м на 3 этаже.
Кабинеты от 12 до 30 кв. м. Есть отдельный кабинет 30 кв. м на 2 этаже. Есть производственные и складские площади 200 кв. м на 3 этаже.
Цены разные, подберем подходящий вариант. Вход с торцевого крыльца по отдельной лестнице.
Центр города, первая линия. Отлично под офисы, оказание услуг, обслуживание населения, небольшое производство, спортзал, спортивные секции для взрослых и многое другое.
Все коммуникации центральные. Выделенная мощность 37 кВт.
В здании Почта России, мебельный салон, автошкола и другие арендаторы. Высокая проходимость. Есть парковка.
Возможно размещение рекламной конструкции на фасаде здания, подключение городского телефона, высокоскоростного интернета.
Аренда от собственника — юридического лица ПАО ''Ростелеком''. Цена указана с учетом НДС. Не является офертой.