Если цена в объявлении изменится, мы сразу сообщим вам об этом на электронную почту.
Нажимая «Подписаться», вы соглашаетесь с правилами.
продам 1-к, Столыпина, 23 600 000 ₽
19 сен
Дата публикации объявления
Обн. 11 апр
Дата обновления объявления
3
Количество просмотров (+ просмотры за сегодня)
97 297 ₽/м²
Чистая продажа
Термин "Чистая продажа" означает, что в квартире никто не прописан или
есть куда выписаться и вывезти вещи. Это лучший вариант для покупателя.
Вероятность срыва сделки минимальна.
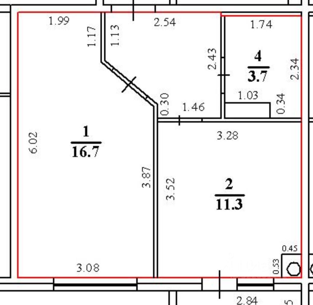
Продаётся уютная , светлая, теплая однокомнатная квартира площадью 37 квадратных метров на втором этаже трёхэтажного кирпично-монолитного дома новой постройки (2024 год) в микрорайоне Новый Город по адресу: Ульяновск, Столыпина проспект, 2 с индивидуальным отоплением, что экономит коммунальные платежи.
Жилое пространство составляет 16.7 квадратных метров, кухня занимает приятные 11.3 квадратных метров, где каждый сможет воплотить свои кулинарные фантазии. Квартира может похвастаться свежим косметическим ремонтом, что позволит новым владельцам сразу же заселиться без дополнительных вложений.
Совмещённый санузел оборудован всем необходимым, а вид из окон на тихий двор создаст атмосферу спокойствия и уюта.
Продаётся уютная , светлая, теплая однокомнатная квартира площадью 37 квадратных метров на втором этаже трёхэтажного кирпично-монолитного дома новой постройки (2024 год) в микрорайоне Новый Город по адресу: Ульяновск, Столыпина проспект, 2 с индивидуальным отоплением, что экономит коммунальные платежи.
Жилое пространство составляет 16.7 квадратных метров, кухня занимает приятные 11.3 квадратных метров, где каждый сможет воплотить свои кулинарные фантазии. Квартира может похвастаться свежим косметическим ремонтом, что позволит новым владельцам сразу же заселиться без дополнительных вложений.
Совмещённый санузел оборудован всем необходимым, а вид из окон на тихий двор создаст атмосферу спокойствия и уюта. Для маленьких жителей во дворе установлена детская площадка, а удобная парковка избавит от проблем с поиском места для автомобиля.
Расположение дома предлагает комфортное соседство с развитой инфраструктурой: рядом находятся школы и детские сады, торговые центры для удобных покупок, парки для прогулок на свежем воздухе и фитнес-центры для поддержания формы. Любителям вкусной еды придутся по душе близлежащие Пятёрочка и супермаркеты, а также кафе и рестораны BRO, Caffeine и другие точки питания. Рядом расположены аптеки Апрель и прочие объекты повседневного спроса, а также студии красоты Arcada и другие учреждения сферы красоты и здоровья.
Это отличный выбор для тех, кто ценит комфорт, безопасность и качество жизни. Приглашаем вас оценить все преимущества данной квартиры лично!