24 дек
Обн. 2 апр
1
Продам коттедж, 1 Мая
Ленинский район
Ульяновск
19 999 000 ₽126 736 ₽ за м²
Чистая продажа
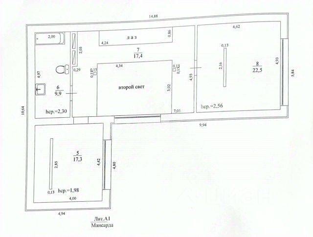
Коттедж
- Этажей2
- Площадь участка10 соток
- Общая площадь157 м²
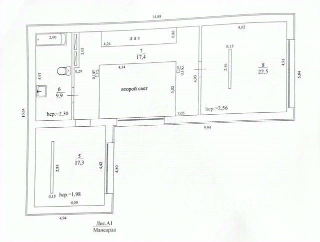
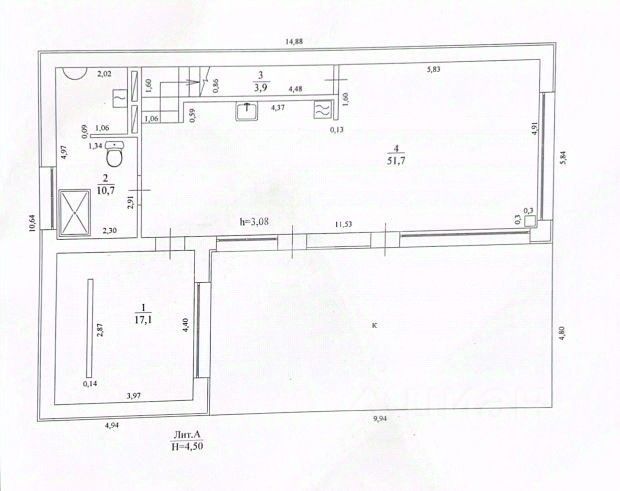
Описание
Арт. 128076698 Дом с современным ремонтом в элитном коттеджном поселке в черте города.
Контакты
Агентство недвижимости
Самолет Плюс
Анна Созонова
№116446294
Ипотечный калькулятор
Стоимость
₽
Первый взнос
₽
Срок кредита
лет
Процентная ставка
Проц. ставка
%
Ежемесячный платеж
152 809 ₽
Мин. доход
277 835 ₽
Сумма кредита
15 999 200 ₽
Один запрос в 8 банков
+2
Узнайте за 10 минут, какую сумму кредита вам одобрят банки




