Если цена в объявлении изменится, мы сразу сообщим вам об этом на электронную почту.
Нажимая «Подписаться», вы соглашаетесь с правилами.
продам 2-к, Аблукова, 47 949 000 ₽
28 янв
Дата публикации объявления
Обн. 13 мая
Дата обновления объявления
2
Количество просмотров (+ просмотры за сегодня)
150 549 ₽/м²
Чистая продажа
Термин "Чистая продажа" означает, что в квартире никто не прописан или
есть куда выписаться и вывезти вещи. Это лучший вариант для покупателя.
Вероятность срыва сделки минимальна.
Арт. 129164586 Квартира в истинно классическом ключе: эстетика, проверенная временем.
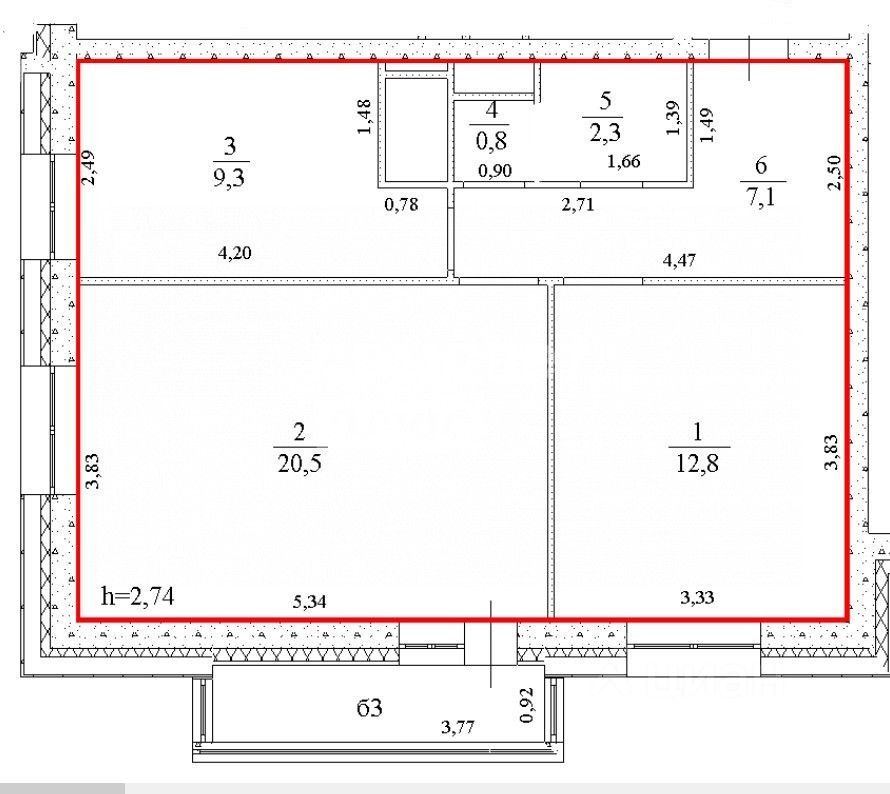
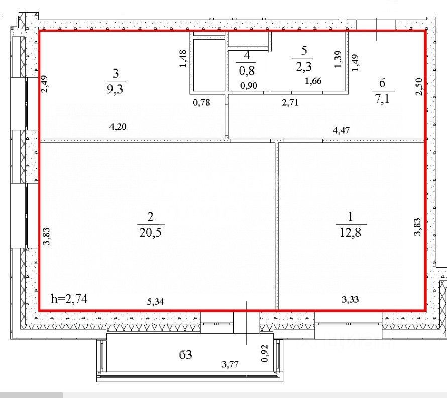
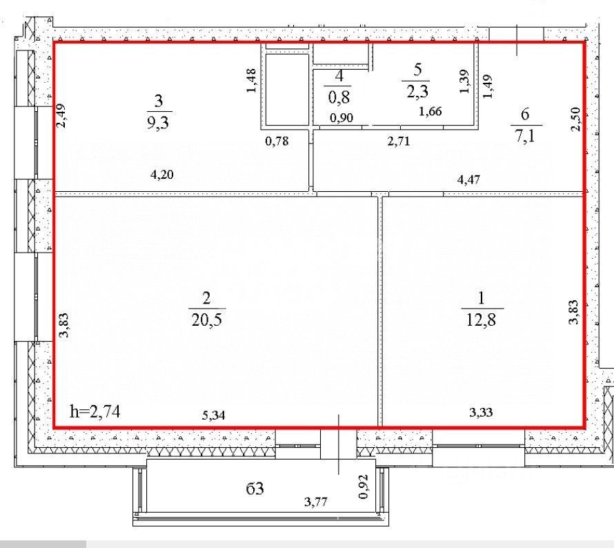
ПАРАМЕТРЫ: 24 этаж (есть технический этаж), общая площадь 52,8 м², жилые комнаты 20,5 м² и 12,8 м², кухня 9,3 м², коридор 7,1 м².
Одно из главных преимуществ квартиры - это большая, наполненная светом гостиная. В комнате два окна, одно из них с выходом на балкон, из них открывается живописный вид на две реки и город.
В квартире выполнен современный ремонт в базовых тонах. Использованы качественные материалы. В комнате и на кухне постелен ламинат, в санузле - керамическая плитка. На стенах поклеен обои. Потолки натяжные, светильники установлены. Санузел совмещен, оснащен хорошей сантехникой.
Арт. 129164586 Квартира в истинно классическом ключе: эстетика, проверенная временем.
ПАРАМЕТРЫ: 24 этаж (есть технический этаж), общая площадь 52,8 м², жилые комнаты 20,5 м² и 12,8 м², кухня 9,3 м², коридор 7,1 м².
Одно из главных преимуществ квартиры - это большая, наполненная светом гостиная. В комнате два окна, одно из них с выходом на балкон, из них открывается живописный вид на две реки и город.
В квартире выполнен современный ремонт в базовых тонах. Использованы качественные материалы. В комнате и на кухне постелен ламинат, в санузле - керамическая плитка. На стенах поклеен обои. Потолки натяжные, светильники установлены. Санузел совмещен, оснащен хорошей сантехникой. Квартира полностью готова к переезду.
Главные преимущества дома - это хорошее месторасположение, спальный район, при этом все находится в шаговой доступности, рядом набережная реки Свияга, а также большая ухоженная территория, зеленые насаждения, гулять в этом районе одно удовольствие.
Во дворе имеется несколько современных детских площадок, достаточное количество парковочных мест.
В минуте ходьбы ТЦ ''Аквамолл'', магазины, аптеки, кафе. Также в пешей доступности поликлиника, садики и школы. Территория закрытая, есть видеонаблюдение, все совершенно безопасно.
ИНФРАСТРУКТУРА: - ТЦ ''Аквамолл'', - Школа 7, - Детские садики, - Супермаркеты: ''Ашан'', ''Гулливер'', ''Пятерочка'', ''Магнит'', - Аптеки внутри ЖК, - Остановки общественного транспорта.
ЛЕГКО КУПИТЬ: - Наличные, ипотека, - Без долгов и обременений, - Все виды сертификатов, в т.ч. материнский капитал, - Торг.
Гарантия юридической чистоты сделки от компании. Звоните, записывайтесь на показ объекта прямо сейчас. Рады будем ответить на все ваши вопросы с 9:00 до 21:00.