Если цена в объявлении изменится, мы сразу сообщим вам об этом на электронную почту.
Нажимая «Подписаться», вы соглашаетесь с правилами.
продам 2-к, Ефремова, 137 корп. 25 399 000 ₽
31 янв
Дата публикации объявления
Обн. 12 мар
Дата обновления объявления
1
Количество просмотров (+ просмотры за сегодня)
109 291 ₽/м²
Чистая продажа
Термин "Чистая продажа" означает, что в квартире никто не прописан или
есть куда выписаться и вывезти вещи. Это лучший вариант для покупателя.
Вероятность срыва сделки минимальна.
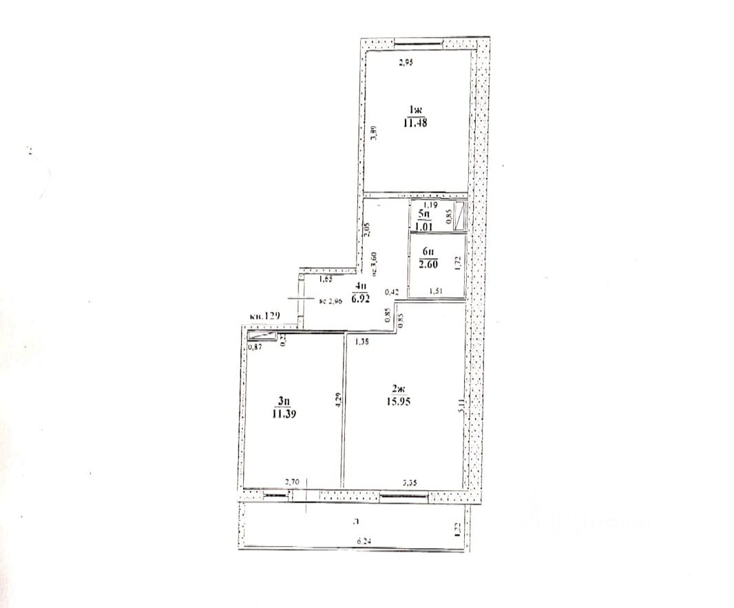
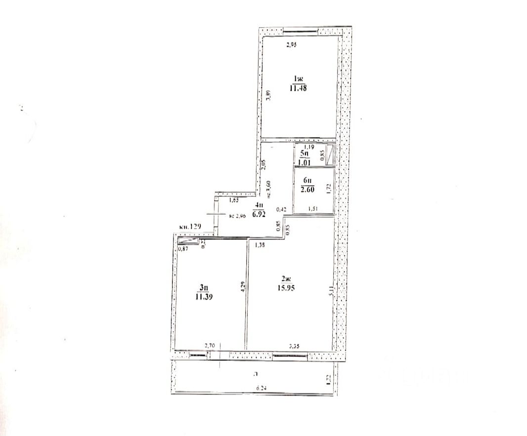
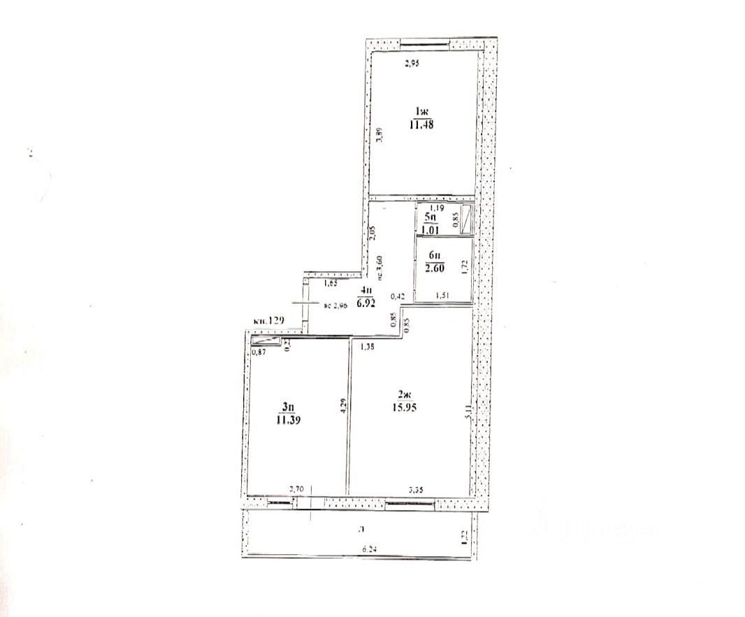
Продаётся уютная двухкомнатная квартира с евро-ремонтом в панельном доме (заезжай и живи). Комнаты изолированные, что обеспечивает комфорт и приватность. Из окон открывается вид на тихий двор с детской и спортивной площадкой с одной стороны и на школу 85 с другой, за школой детский сад ''Изюминка'' (так что если вы с детьми, то для них есть вся инфраструктура).
Продаётся уютная двухкомнатная квартира с евро-ремонтом в панельном доме (заезжай и живи). Комнаты изолированные, что обеспечивает комфорт и приватность. Из окон открывается вид на тихий двор с детской и спортивной площадкой с одной стороны и на школу 85 с другой, за школой детский сад ''Изюминка'' (так что если вы с детьми, то для них есть вся инфраструктура). Во дворе маленький продуктовый магазинчик, в шаговой доступности магазины: 3 Пятерочки, Гулливер, Магнит, Победа, Находка, Красное Белое, Бристоль, Waildberris, Ozon, шаурма, аквапарк Улёт, Александровский парк, детский развлекательный комплекс ''Прыг Скок'', в 15 минутах пешком обустроеный пляж, катлаваны (очень хорошо летом), сбоку дома в 3 минутах остановка маршруток 93,28,50,56 в 7 минутах с другой стороны остановка трамваев 15,2,5 и также остановка других маршруток едущих в центр, север, киндяковку, новый город.
Большая кухня 11,48м с выходом на лоджию оборудована современной мебелью (кухонный гарнитур остается), удобна для готовки и больших посиделок. В зале большой вместительный встроенный шкаф купэ глубиной 80см и 2м шириной (со штангами для вешалок и полками, дополнительный шкаф не нужен), в квартире раздельный санузел, оформленный в светлых тонах. Лоджия застеклена, что позволяет использовать её как дополнительное пространство для отдыха.
Дом оснащён грузовым лифтом, мусоропроводом. Открытая парковка во дворе решает вопрос с местом для автомобиля. Низкие комунальные платежи по сравнению с любыми ТСЖ по моему мнению. Продажа чистая, без посредников. Думайте, звоните, пишите, риелторов просьба не беспокоить (только если вы представляете интересы реального покупателя). С реальным покупателем возможен торг в пределах разумного естественно.