logo
N1.RU — новая улучшенная версия Е1.Недвижимость
Чтобы вернуться на старый сайт Е1.Недвижимость, перейдите по ссылке в нижней части сайта N1.RU
  • Продажа
  • Аренда
  • Новостройки
  • Журнал
  • Компании
  • Шаблоны документов
  • Налоговый вычет
  • Еще
  • Личный кабинет
    • Регистрация на Циан
    • Ульяновск
  • Добавить объявление
Тип недвижимости
Ульяновск
Начните вводить или выберите объект в выпадающем списке
  • Район и микрорайон
Количество комнат
Цена
  1. Недвижимость в Ульяновске
  2. Продажа
  3. Квартиры
  4. 29 объявлений

Продажа двухкомнатных квартир в Ульяновске

  • Вторичка29
  • Без посредников1
За все время
Сортировка по умолчанию
СпискомСписком
ТаблицейТаблицей
На картеНа карте
Открыть поиск по карте

По вашему запросу объявлений не найдено

1/7
2-к, Свирская, 2 Показать на карте
Димитровград
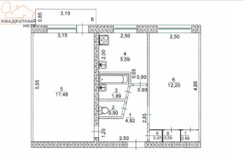
ПРОДАЕТСЯ тёплая 2к квартира - Свободная продажа - Кварира без ремонта, что позволяет сделать на свой вкусПЛАНИРОВКА : Общая площадь: 45.27м² Жилая площадь 29.70м²- Зал 17.48м², комната 12.22м² Кухня :6.01м² Балкон Комнаты изолированные - Окна выходят на улицу - Санузел раздельный - Не угловая ОСОБЫЕ ПРЕИМУЩЕСТВА:- Чистый подъезд- Хорошие соседи ИНФРАСТРУКТУРА И ОКРУЖЕНИЕ Транспорт: Маршрут N 43, 9, 2 Образование: Детские сады:N 56 Автошка - Школы N 19 Торговля: Победа, Магнит, Автомагазины Безопасность :- Детская площадка во дворе- Придомовая территория ухоженная и асфальтированная ИНФОРМАЦИЯ О СОБСТВЕННИКАХ Статус: Агентство недвижимости Квадратный метр Прописка: Никто не прописан Обременения: Нет обременений Долги: Нет задолженностей по ЖКХ. Документы: Полный пакет документов готов один собственник быстро выходим на сделку- Ключи в день сделки ВАРИАНТЫ РАСЧЕТА НАЛИЧНЫЕ / БЕЗНАЛ ИПОТЕКА- Подберем банк с лучшей ставкой для вас (Сбербанк, ВТБ, Альфабанк и тд)- Поможем собрать документы и получить одобрение.- Организуем взаимодействие с банком на всех этапах сделки МАТЕРИНСКИЙ КАПИТАЛ БЕЗОПАСНЫЕ СХЕМЫ РАСЧЕТОВ (Ячейка/Аккредитив/Эскроу) ВЫПЛАТЫ УЧАСТНИКАМ СВО И ИХ РОДСТВЕННИКАМ ПРИМЕНЕНИЕ РАЗЛИЧНЫХ СЕРТИФИКАТОВ: СИРОТСКИЙ, КАПИТАЛ ''СЕМЬЯ'', ''МОЛОДАЯ СЕМЬЯ''ДОПОЛНИТЕЛЬНО:* Возможность онлайн показа* Возможность дистанционной сделки* Еще больше вариантов можно посмотреть в нашем профилеПОДБОР НЕДВИЖИМОСТИ ДЛЯ УЧАСТНИКОВ СВО И ИХ РОДСТВЕННИКОВ БЕСПЛАТНО___ПРОФЕССИОНАЛЬНОЕ СОПРОВОЖДЕНИЕ СДЕЛКИ ОТ АГЕНТСТВА КВАДРАТНЫЙ МЕТРЛидер рынка недвижимости Димитровграда с подтвержденной экспертизой, сертификатом и аттестацией. Работаем с 2016 года. ВАШИ ГАРАНТИИ ПРИ ПОКУПКЕ: Юридическая чистота сделки гарантируется Проверка 7 ключевых реестров (долги, аресты, залоги и тд) Бесплатная выписка из ЕГРН при сделке + отчет об юридической проверке объекта и собственников Личная встреча с собственником Безопасные расчеты____ Добавьте в избранное, чтобы не потерять Не откладывайте просмотр объекта это первый шаг к решению Вашего жилищного вопросаНомер объекта: #1/542182/13132
45 м2
5 / 5 этаж
Кирпич
  • Показать контакты
  • Добавить в избранное
45 м2
5 / 5 этаж
Кирпич
1 790 000 
39 541 /м2
    1/7
    2-к, Димитрова проспект, 18а Показать на карте
    Димитровград
    ПРОДАЕТСЯ 2-комн. квартира в Соцгороде - Альтернативная продажа - Пластиковые окна - Чистый подъезд, доброжелательные соседи, двор ухожен Планировка: - Общая площадь 32 м²- Жилая площадь: 23м²- кухня 7 м²- Санузел раздельный- Комнаты изолированные ИНФРАСТРУКТУРА И ОКРУЖЕНИЕ:Рядом детский сад Теремок, детский сад Звездочка. Магазины Красное Белое, Космос, АптекаПлюс в шаговой доступностиИНФОРМАЦИЯ О СОБСТВЕННИКАХ Продажа через Агентство недвижимости Квадратный метр Прописка: 1 чел Обременения: Нет обременений - Собственник: 1 чел Долги: Нет задолженностей по ЖКХ. Документы: Полный пакет документов готов Собственность более 3 лет- Альтернативная продажа.ОСОБЫЕ ПРЕИМУЩЕСТВА- Быстрый выход на сделку- Ключи в день сделки ВАРИАНТЫ РАСЧЕТА НАЛИЧНЫЕ / БЕЗНАЛ ИПОТЕКА- Подберем банк с лучшей ставкой для вас (Сбербанк, ВТБ, Альфабанк и тд)- Поможем собрать документы и получить одобрение.- Организуем взаимодействие с банком на всех этапах сделки МАТЕРИНСКИЙ КАПИТАЛ БЕЗОПАСНЫЕ СХЕМЫ РАСЧЕТОВ (Ячейка/Аккредитив/Эскроу) ВЫПЛАТЫ УЧАСТНИКАМ СВО И ИХ РОДСТВЕННИКАМ ПРИМЕНЕНИЕ РАЗЛИЧНЫХ СЕРТИФИКАТОВ: СИРОТСКИЙ, КАПИТАЛ ''СЕМЬЯ'', ''МОЛОДАЯ СЕМЬЯ''Дополнительно:* Показ в любое удобное для Вас время * Возможность дистанционной сделки* Еще больше вариантов можно посмотреть в нашем профилеПОДБОР НЕДВИЖИМОСТИ ДЛЯ УЧАСТНИКОВ СВО И ИХ РОДСТВЕННИКОВ БЕСПЛАТНО___ПРОФЕССИОНАЛЬНОЕ СОПРОВОЖДЕНИЕ СДЕЛКИ ОТ АГЕНТСТВА КВАДРАТНЫЙ МЕТРЛидер рынка недвижимости Димитровграда с подтвержденной экспертизой, сертификатом и аттестацией. Работаем с 2016 года. ВАШИ ГАРАНТИИ ПРИ ПОКУПКЕ: Юридическая чистота сделки гарантируется Проверка 7 ключевых реестров (долги, аресты, залоги и тд) Бесплатная выписка из ЕГРН при сделке + отчет об юридической проверке объекта и собственников Личная встреча с собственником Безопасные расчеты Добавьте в избранное, чтобы не потерять Не откладывайте просмотр объекта это первый шаг к решению Вашего жилищного вопросаНомер объекта: #1/542249/13132
    33 м2
    7 / 9 этаж
    Кирпич
    • Показать контакты
    • Добавить в избранное
    33 м2
    7 / 9 этаж
    Кирпич
    1 650 000 
    48 817 /м2
      1/21
      2-к, Московская, 57 Показать на карте
      Димитровград
      Продам квартиру отличной планировки : комнаты изолированные (можно перегородку убрать ).Имеется 2 балкона с видом на разные стороны,застекленные .Сантехника в хорошем состоянии,санузел совмещен.Квартира свободная.Быстрое освобождение.Взрослый собственник.Квартира продается с мебелью . ( можно без мебели, вывезем)Рядом вся инфраструктура: поликлиника, магазины, школы, садики.)Квартира солнечная, теплая.Окна пластиковые.Счетчики установлены.
      32 м2
      6 / 9 этаж
      Кирпич
      • Показать контакты
      • Добавить в избранное
      32 м2
      6 / 9 этаж
      Кирпич
      1 650 000 
      51 563 /м2
        2-к, Гагарина, 141 Показать на карте
        Димитровград
        Данные в объявлении обновляются раз в сутки. Подробные параметры объекта, актуальные данные и НДС посмотрите на сайте электронных торгов.
        48 м2
        1 / 3 этаж
        • Показать контакты
        • Добавить в избранное
        48 м2
        1 / 3 этаж
        1 010 480 
        21 008 /м2
          • 1
          • 2
          Распечатать
          Продажа двухкомнатных квартир в Ульяновске
          • по районам
          • Железнодорожный район
          • Заволжский район
          • Засвияжский район
          • Ленинский район

          Вместе с этим также ищут:

          Продажа квартир в Ульяновске Продажа однокомнатных квартир в Ульяновске Продажа комнат в Ульяновске Продажа гаражей в Ульяновске Продажа вторички - квартиры в Ульяновске Квартиры в новостройках в Ульяновске

          🏠 Как купить двухкомнатную квартиру в Ульяновске на N1?

          • ✔ В поисках объявления о продаже или покупке квартир в Ульяновске?
          • ✔ На N1 размещены 29 квартир
          • ✔ Чтобы купить или продать недвижимость, воспользуйтесь формой поиска, фильтрами или быстрыми ссылками.

          💸 Сколько стоит двухкомнатная квартира в Ульяновске?

          • 🟢 Средняя цена продажи двухкомнатных квартир - 1,62 млн ₽
          • 🟢 Минимальная стоимость за 1 м2: 39,45 тыс ₽

          📚 Какая площадь двухкомнатных квартир?

          • Наибольшая площадь: 73 м²
          • Минимальная площадь: 23 м²