2-к, Октябрьская, 41 Показать на карте
Засвияжский район
Ульяновск
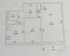
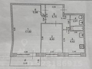
Продается уютная просторная двухкомнатная квартира на 5 этаже общей площадью 43,5 кв.м. *Высокий этаж обеспечивает тишину и отсутствие шума от соседей сверху, а недавно отремонтированная крыша исключает риск протечек.*Окна пластиковые, выходят на солнечную сторону, что создает особую атмосферу тепла и уюта. Естественное освещение большую часть дня, а это экономия электроэнергии.*Изолированные комнаты создают комфортные условия для проживания семьи, позволяют сохранить личное пространство. *Вместительная прихожая со встроенным шкафом - удобное и практичное решение для хранения вещей.*Санузел совмещенный. *Балкон, отделанный деревянной обшивкой, со шкафчиками - дополнительное уютное пространство для отдыха и хранения имущества.В квартире проведен капитальный ремонт инженерных систем: заменены электрическая проводка, трубы водоснабжения и канализации, установлены современные радиаторы отопления, счетчики воды и электроэнергии нового образца, что гарантирует безопасность и бесперебойную работу коммуникаций.Особое преимущество — газовая колонка, обеспечивающая постоянное наличие горячей воды независимо от сезона.Район отличается развитой инфраструктурой: в шаговой доступности находятся магазины, аптеки, кафе, детские сады и школы. Хорошая транспортная доступность позволяет быстро добраться до центра города и ключевых магистралей.Один собственник, что упрощает процесс сделки.Квартира с частичной, но качественной отделкой. У вас будет прекрасная возможность сделать ремонт по своему вкусу.Разумный торг предусмотрен.Приглашаем на просмотр этой светлой и уютной квартиры! Код пользователя: 174550Номер в базе: 8195073
43 м2
5 / 5 этаж
- Показать контакты
- Добавить в избранное
43 м2
5 / 5 этаж
3 100 000
71 264 /м2
