2-к квартира Показать на карте
Засвияжский район
Ульяновск
''Новая Жизнь'' - это молодой современный микрорайон, созданный для комфортной жизни. Микрорайон уже частично заселен, на первых этажах располагаются супермаркеты, аптеки и другие объекты с необходимой инфраструктурой. Территория района разработана по концепции ''дворы без машин'', все парковочные места вынесены за пределы жилых зон.На территории расположен крупнейший в городе детский игровой хаб ''Пауки'', а также несколько детских площадок для разных возрастных групп и спортивные площадки для игровых видов спорта.Квартирография 2 очереди включает в себя большой выбор планировочных решений от студии до просторной четырехкомнатной квартиры. В проекте представлены квартиры с готовой отделкой, варианты с встроенной кухней, а также варианты квартир без отделки, для тех, кто хочет заняться ремонтом самостоятельно.
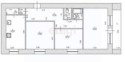
36 м2
23 / 24 этаж
Монолит
- Показать контакты
- Добавить в избранное
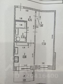
36 м2
23 / 24 этаж
Монолит
5 442 438
148 013 /м2
Новостройка,
III-2027
III-2027
