2-к квартира Показать на карте
Засвияжский район
Ульяновск
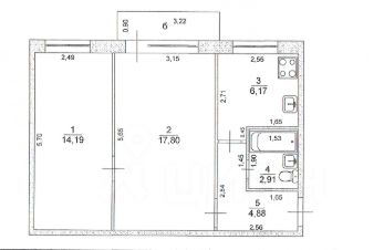
ЖК Ясново Дом 1010-й дом продолжает развитие парк-квартала Ясново— современного, гармоничного пространства для жизни.Архитектура дома лаконична и выразительна, выдержана в общем стиле квартала и поддерживает его единый ритм и масштаб.На первом этаже расположатся магазины, уютные кафе и полезные сервисы — всё, что нужно рядом с домом.Закрытый двор без машин — безопасное и зелёное пространство для прогулок, встреч и отдыха. Жителям доступен привычный комфорт Ясново: современные детские площадки и зоны для отдыхаблагоустроенные пешеходные маршрутыколясочная, санузел с лапомойкой на первом этажесобственная котельная и горячая вода круглый год.Квартира сдается в базовой отделке: готова стяжка пола и установлены счетчики, лоджии остеклены и заведен кабель для подключения интернета. Качественные металлические входные двери с надежной фурнитурой. Дополнительно вы можете выбрать любой вид отделки от застройщика — ''whitе bох'' или ''whitе bох PRO'' с полностью готовым санузлом, а также ''под ключ'' в стиле Утро или Вечер.13-ый этаж
35 м2
13 / 14 этаж
Кирпич
- Показать контакты
- Добавить в избранное
35 м2
13 / 14 этаж
Кирпич
4 176 700
117 060 /м2
Новостройка,
IV-2027
IV-2027
