Офисное помещение
Робеспьера, 114 Показать на карте
Робеспьера, 114 Показать на карте
Ленинский район
Ульяновск
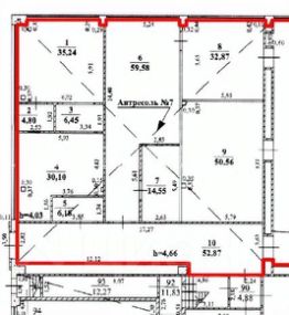
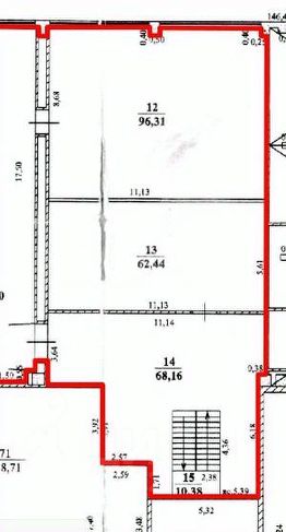
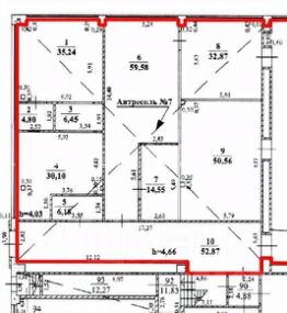
ОписаниеОфис Помещение 18,6 м²БЕЗ КОМИССИИ ДЛЯ АРЕНДАТОРА!Номер объекта в базе # 18112Площадь: 18,6 кв.мЭтаж: цоколь Этажность: 9Все коммуникации проведеныДоступ в помещение: 24/7Количество входов: 1Коммунальные платежи: Оплачиваются отдельно: Свет и вода по счетчикам.Электроснабжение: 10 кВтВысота потолков: 2,7 мСанузел: СовмещённыйНазначение: Без профиля, любое коммерческое использованиеПримечание: высокий цоколь, кабинетная система (кабинет ближайший к выходу), охрана.В настоящий момент помещение свободноАренда: 12 000 рублей/месяцDAEVROPA с радостью поможет вам найти лучшее решение, соответствующее вашим требованиям и финансовым возможностям. Звоните или пишите — мы всегда на связи!
18 м2
- Показать контакты
- Добавить в избранное
18 м2
12 000 /мес.
645 /м2
